Projekt topení
Vytápění baráku
Projekt topení
říjen 2014
Zdroj tepla je vybrán, radiátory jsou vyjasněny, projektant od nás obdržel jasné a kompletní zadání. Jak dopadl projekt?
Výsledek vypadá jednoduše, ale vedla k němu poměrně dlouhá a trnitá cesta.
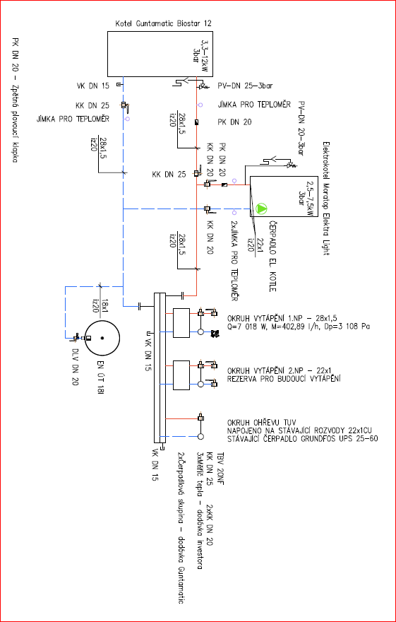
Nejprve základní schema zapojení kotle a hlavního rozvaděče.
Toto schema si zaslouží komentář.
Nakonec byly použity zdroje tepla dva - peletkový kotel Guntamatic, jako hlavní zdroj a elektrokotel MORA Light - jako záložní zdroj energie. Hlavní kotel má špičkový trvalý výkon kolem 15kW, elektrokotel je o výkonu 7,5 kW. Je myšlen skutečně jen jako záloha. Přiznávám, že nepředpokládám jeho velké využití, ale varianta pro hlavní zdroj to je, a není zbytečně drahá. A tak je součástí systému, nikdo z nás neví, zda se nebude nakonec někdy hodit (třeba pro případ, že dojdou peletky).
Zapojení obou kotlů je paralelní. Vzájemné ovlivňování a průtok teplé vody z jednoho kotle do druhého měly zabránit plovoucí zpětné klapky - to se nakonec ukázalo jako nefunkční a bylo nutné do série s elektrokotlem zapojit ještě elektroventil, ale o tom se zmíním jinde.
Rozdělovač je připraven pro tři okruhy - první okruh je využit pro napájení I.patra - tedy nyní obývaných místností. Druhý okruh je rezerva, není zapojen, a je připraven pro zásobování druhého patra (kdyby někdy bylo potřeba). Oba okruhy jsou směšované s třícestným ventilem, ovládaným u Biostaru. A třetí okruh je zapojen do výměníku bojleru teplé užitkové vody.
Všechny okruhy jsou ovládány přímo z kotle Guntamatik. Nouzový režim je nastaven tak, že předpokládá funkční Biostar (tedy jen regulace bez peletek). Pak systému dodává teplou vodu jen elektrokotel, který je nastaven na konstatní výstupní teplotu. Regulace Biostaru je bez problémů schopna obsloužit oba směšovací ventily a topení běží i bez peletek.
Rozvody v suterénu.
Jedná se zejména o hlavní rozvody tepla pro radiátory v I. patře. Výjimkou je jen radiátor RADIK Klasic v dílně.
V průběhu trasy vedení topné vody jsou vidět výstupy do prvního patra, kam jsou zapojeny radiátory. Všechny trubky jsou zavěšeny pod stropem a zaizolovány dostatečnou tepelnou izolací.
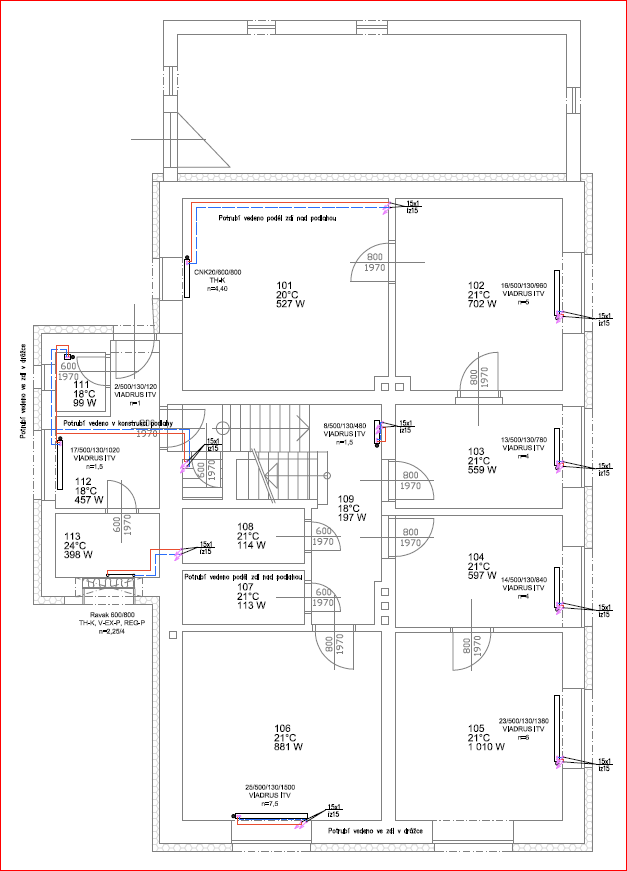
Radiátory a rozvody I.patro.
Zde je to poměrně jednoduché - tedy na papíře.
Ve schematu je uveden, mimo jiné, i potřebný výkon u jednotlivých místností. Radiátory jsou rozepsány již pro Viadrus Styl.
Další patro nebylo detailně rozkreslováno, nicméně, je pro něj připraven jeden z vývodů směšovače u kotle.
Zvolený kotel Biostar umožňuje již z výroby regulovat tři nezávislé okruhy. Regulace je řešena jako ekvitermní, teplota vody je nastavována v závislosti na vnější teplotě, lze zvolit, jaký podíl v regulaci bude mít teplota vnitřní. Čidlo vnitřní teploty je umístněno v tzv."referenční místnosti". V našem případě byl za referenční místnost zvolen pokoj (č.202). S volbou referenční místnosti souvisí i regulace teploty v ostatních místností. Je nutné totiž řešit i lokální regulaci v případě přehřívání místnosti (více lidí, nebo sluníčko), nebo její vychlazení (třeba po vyvětrání). Každá místnost (s výjimkou referenční místnosti) bude mít radiátor osazen ještě termostatickou hlavici, která dokáže regulovat lokálně.

To je další dílčí problém - výběr vhodného termostatického ventilu. Standardně dodávaný ventil k vybranému radiátoru Viadrus Styl nám nevyhovoval a tak jsme vybírali jiný, vhodnější. Nakonec padla volba na značkový ventil Danfoss living desing.
Vypadá podstatně lépe a na radiátorech skutečně dělá ozdobu.
Termostatický ventil umožňuje jemně upravit teplotu ve vybraném pokoji bez ohledu, na provoz v ostatních místnostech. Samozřejmě ale jen s teplotou směrem dolů. Teplotu lze udržet, či omezit, nikoliv zvýšit. Celý otopný systém je nastaven tak, aby udržoval teplotu v celém baráku na referenční úrovni (dlouhodobě máme nastaveno 21,5°C/18,5°C). Pokud uživatel chce zvýšit teplotu, pak jedině v celém okruhu.
V praxi to ale neznamená žádné omezení. Za jednu topnou sezónu se nakonec ukázalo, že ekvivalentní regulace naprosto vyhovuje.
A ještě výhled do budoucna - systém topení a výběr regulace také ovlivnil i další náš záměr - chceme instalovat ještě systém řízeného větrání s rekuperací tepla. Tento systém je postaven na principu postupné výměny vzduchu ve všech místnostech baráku. Dochází tak k postupnému promíchávání vzduchové masy a tím i k vyrovnávání teploty v místnostech. Pak poněkud pozbývá smyslu samostatně regulovat teplotu v jednotlivých místností, neboť funkce větrání stejně teploty pomalu průměruje.
I toto byl jeden z důvodů, proč jsme se nakonec přiklonili k řízení a regulaci topení na základě venkovní teploty - tedy k ekvitermní regulaci.


